検索

有限会社ナスカ一級建築士事務所
162-0052 東京都新宿区戸山3-15-1 日本駐車ビル4F
T 03-5272-4808 F 03-5272-4021

ヤタロー地産地消工場店Yataro Outlet Store

静岡県浜松市中央区上西町1013-1

設計 桔川卓也/NASCA
用途 物販店舗・事務所
構造 S
規模 地上2
敷地 3,145.03㎡
延床 1,041.97㎡
竣工 2025.4

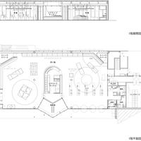
敷地は静岡県浜松市。ヤタロー工場直売店の移転リニューアル計画である。
クライアントが昭和8年の創業以来、大切にしてきた「この街とともに」という想いを新しい形で表現すべく、「ヤタロー地産地消工場店」が始動した。「地元・浜松を元気にしたい」というクライアントの言葉が原動力となり、このプロジェクトを成功させたいという強い思いに駆られた。私自身、18歳まで浜松で暮らし、大学進学で地元を離れて22年が経つが、いつの日か建築を通じて地元に貢献したいと考えていた。そのため、クライアントの想いに深く共感し、同じ目標に向かって取り組めると確信した。
ヤタローは製造小売業を主とし、商品開発から物流・販売までを自社で一貫して行う強みを持っている。この強みを活かし、「もったいない」をキーワードにアップサイクル商品を生み出し、フードロス削減の活動を続けている。建築デザインにおいてもこの理念を反映し、ほとんどのマテリアルをアップサイクル素材で構成した。売り場空間のシンボルとなる天井吊り什器は、地元天竜杉の小径木材を用い、バラバラな状態の105角材をバウムクーヘンの輪型になるよう連ね、象徴的な売り場を創出した。ライブキッチンの腰壁と垂れ壁は、工事の掘削土を用いた左官工事で仕上げた。土地に根ざした土の温もりと深みのある風合いを、店舗の中心となるキッチンに取り入れることを試みた。他にも、再生紙と間伐材を組み合わせたペーパーウッドや、小さな木片や間伐材を原料とした建材など、さまざまな素材を用いて応えた。
設計から完成までの約2年間、発注者と設計者がともに浜松の未来を元気にしたいと願い、無事にオープンを迎え、未来への第一歩を踏み出した。

 

撮影 淺川 敏